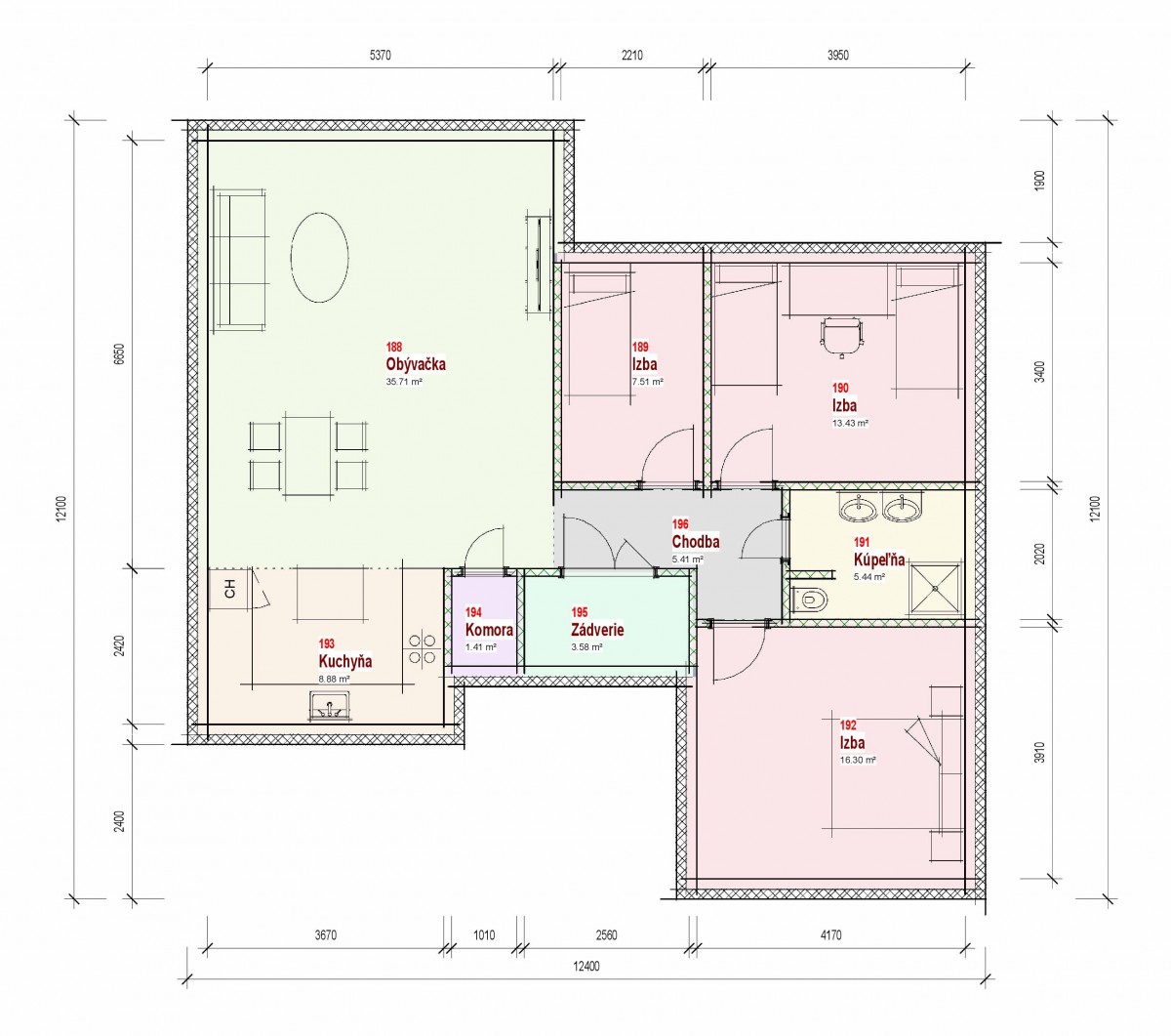
Samostatne stojaci prízemný rodinný dom FLEX 109 je vhodný do rovinatého, prípadne mierne svahovitého terénu. Je to strednej veľkostnej kategórie určený pre 4-5 člennú rodinu.
Vizualizácie domu si môžete prezerať kliknutím na šípky na oboch stranách hlavného obrázku. Pôdorys vo formáte pdf s rozmermi domu si môžete stiahnuť kliknutím na súbor „podorys domu.pdf“ nachádzajúci sa pod hlavnou tabuľkou s údajmi domu.
Dispozíciu domu tvorí kuchyňa, obývacia izba, 3xspálňa, kúpeľňa s WC. Z obývacej izby vedie výstup na terasu. Tento dom je možné objednať aj v bezbariérovom vyhotovení. Dom je vhodný do nízkej okolitej zástavby. Neobytné podkrovie môže slúžiť ako úložný priestor (v prípade sedlovej / valbovej strechy).